First Church of Zeeland
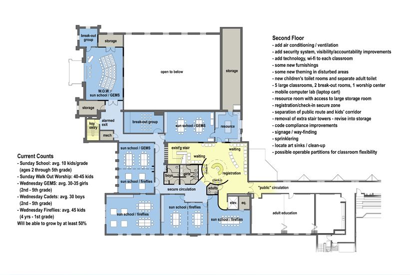
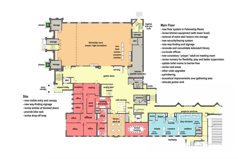
Three floors of an older building, approximately 38,000 sf. Children ministry, youth ministry, administration, hospitality areas, multi-purpose room, structural repairs, engineering systems replacement, barrier-free and code compliance upgrades
“Elevate Studio has taken our values and needs into consideration and presented a master plan that addresses them perfectly! Steve has a warm and inviting approach to presenting the master plan that connects with people and draws them in to the exciting possibilities that lie ahead. We have been pleased from start to finish with Elevate Studio.” - Tom Grabill, Former Pastor of Envisioning and Care Ministries
Client: First Church of Zeeland, MI
Construction: GDK Construction
Interior Design: Rebecca Ballema
Engineering: Comprehensive Engineering









