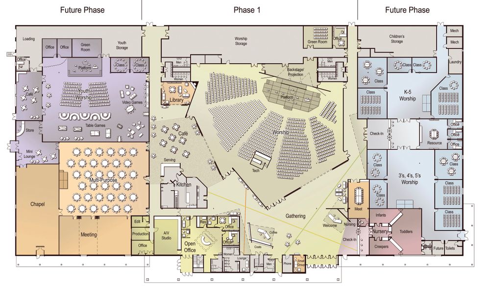
Frontline Community Church
32,000 square foot Master Plan and Exterior Remodel. The building was a former retail company headquarters which needed to be developed to include
Client: Frontline Community Church, Grand Rapids, MI
Expertise: Dignifying the Ordinary, Remodeled Retail Store and Warehouse
“The workshop was a terrific experience. It was a night of unity, bonding, community building and momentum. I am grateful for the skill with which the meeting was led and the results which I am confident will yield an awesome work of God in the new building. My hat goes off to you for helping us put concrete terms to our abstract visionary ideas.” - Jim Miller, Former Senior Pastor
Engineering: Comprehensive Engineering
Construction: Dykhouse Construction











